University of Alberta Tory Atrium               

A dynamic transformation of the University of Alberta's Tory Atrium, creating a bright, flexible space for study and collaboration.

Atrium Revitalization at the University of Alberta

The atrium space between the Tory Building and the Business Building at the University of Alberta has long served as a central gathering point for students and staff. The atrium revitalization project aimed to enhance this important campus hub by transforming the interior to better meet the evolving needs of the university community. The project focused on upgrading key elements of the space, including flooring, lighting, furniture, and acoustics, to create a more comfortable, inviting, and functional environment that encourages both study and social interaction.

I joined the project at the design development stage, where my role was highly collaborative, working to expand the original vision and bring it to life. I was responsible for creative design visioning, 3D renders, developing presentations, and coordinating with the consultants. I also reviewed construction drawings for design accuracy and jumped in to assist with the drawing package to ensure we met our aggressive document deadline. My contributions also included final finish selections, client meetings, and leading the furniture visioning and selection process.

Renders

These 3D renders, created using Revit, Lumion, and Photoshop, showcase key design features of the Tory Atrium, highlighting the revitalized space with detailed views that emphasize lighting, furniture arrangements, and architectural elements.

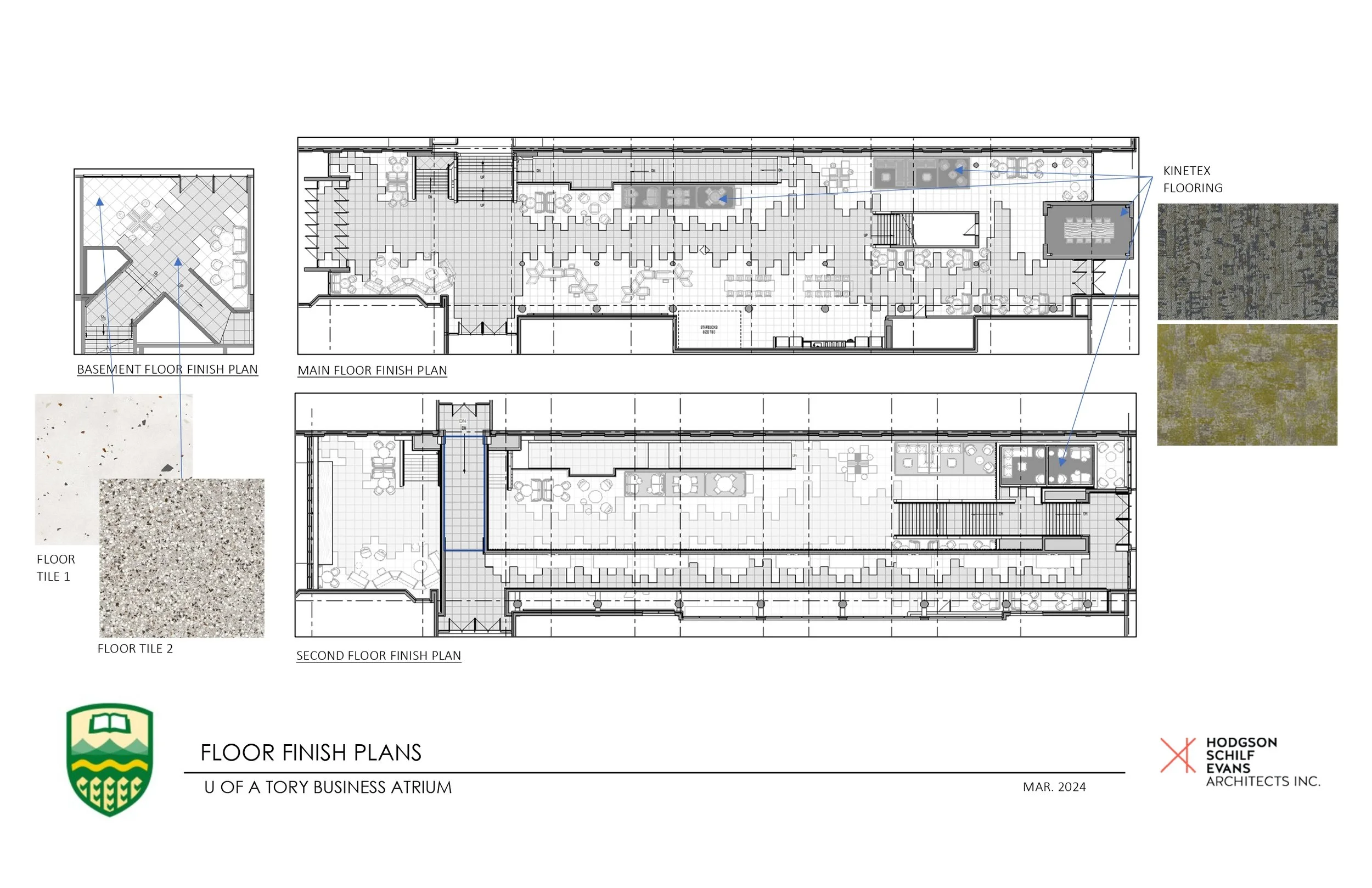
Design Development Report

This design development report outlines the conceptual and technical progress of the Tory Atrium revitalization, detailing key design decisions, material selections, and highlighting key design features including flooring, ceiling plans, lighting, macro graphics, study nooks, millwork, and feature lighting.

Furniture Report

This furniture report outlines the furniture selections for the Tory Atrium, where I played a key role in curating the furniture vision. Working closely with the University’s Facilities Management team, we creatively managed the project’s furniture budget by strategically selecting from the university’s approved products and opting for some pieces to go to tender. I then compiled a detailed document for Facilities Management, enabling them to produce the furniture tender package and ensuring the final selections met both aesthetic and budgetary goals.